羅茨鼓風機隔音罩(隔音房)安裝步驟及注意事項
羅茨風機隔音罩(隔音房)是一種有效降低高噪聲設備噪聲的隔聲措施,它把噪聲較大的設備裝置封閉起來,可以有效地阻隔高噪聲設備噪聲的外傳,減少噪聲對環境的影響。有時會給設備維修、監視、管路布置等帶來不便,并且不利于所罩裝置的散熱,大部分需要通風設施以冷卻罩內的空氣。
羅茨風機隔聲罩(隔音房)的性能特性表明
★選用夾心彩鋼板、鋼板、高性能隔音材料、海綿等多層隔音結構,
★具有顯示壓力和軸承溫度的功能,安裝在風機罩面板上,方便觀察風機運行。
★同時,它具有壓力和溫度控制功能。當壓力和溫度超過設定值時,將信號輸出到控制系統,在系統異常情況下自動關閉電源,保護風扇不損壞。
★四門結構,兩大面可打開,便于日常檢查和維護工作。
★組裝結構便于運輸和安裝。結構緊湊,占地面積小。
羅茨風機隔音罩收貨注意事項風機隔音罩到貨后,要嚴防雨水。卸貨時注意不要撞擊或損壞隔音板。嚴防隔音板平放堆壓!同時,做好以下檢查:
1.根據標志或型號確定風機隔音罩是否符合訂購要求。
2.運輸過程中請確認隔音罩是否損壞。
3.請確認隔音罩是否齊全。如果您發現不完整,請盡快聯系我們的企業。
4.請確認儀器使用的頻率為50HZ或60HZ是否符合訂購要求。
章瑞機械羅茨風機隔音罩的安裝要求
隔音罩應安裝在室內。如果安裝在室外,應采取防雨措施。
安裝隔音罩的水泥地面應平整,強度好,無形。確保隔音罩與地面接觸良好,無噪音泄漏。
為方便拆裝,隔音罩周圍應留有足夠的操作空間。
隔音罩連接牢固,無松動和異常振動。
章瑞機械羅茨風機隔音罩的詳細安裝步驟:
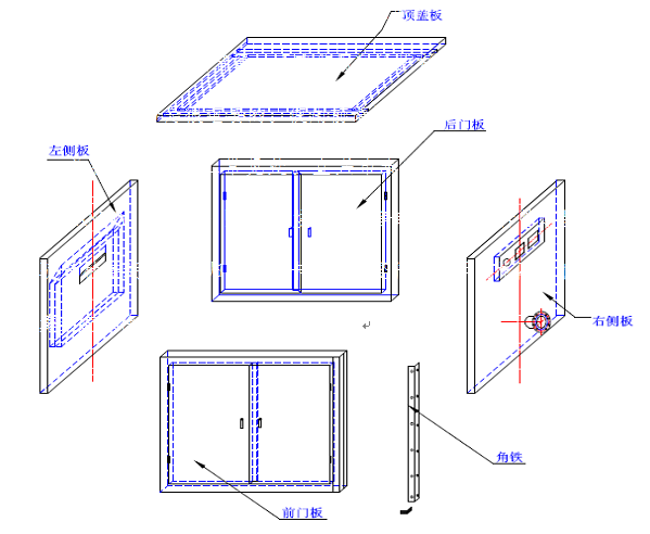
風機隔音罩由前后門扇、上下側板、頂板、排氣扇、連接角鋼及各種儀表組成。

具體步驟:
1.先檢查風機隔音罩安裝路面是否平整,并適當調整。
2.根據圖標垂直豎起風機隔音罩前后門扇,然后垂直豎起上下側板,夾在前后門扇之間。擺放整齊。
3.在四個角落使用四個已打孔的角鋼M5*25自攻螺釘連接門板和側板。(角鋼框一側與側面連接,用電鉆配鉆),連接牢固。
4.檢查門扇與側板的連接情況,上平面平整,側板與門扇角連接緊密,無間隙。(如有少量間隙,可用玻璃密封膠填充,確保隔音罩無明顯噪聲泄漏)。
5.將頂蓋板(凹槽面朝下)放置在連接好的上下側板上,前后門扇上側(上平面應放置在凹槽內)。M5*25自攻螺釘將蓋板與前后門扇與上下側板頂部連接,形成整體風扇隔音罩。
6.如果隨機配備消音海棉,可以在風機房內表面粘貼隨機發貨的異形海棉。注意在原風機房留出每個孔的距離。周圍側板安裝后應粘貼異形海棉,粘貼海棉后應整體安裝機蓋。
7.將我們提供的各種儀表安裝在右板的儀表安裝孔內,安裝到位牢固。
8.啟動隔音罩前后門和門鎖,檢查是否靈活。并做出適當的調整,或與公司聯系。檢查門框之間的密封條是否完好,及時,確保隔音罩具有良好的密封性能。
5.羅茨鼓風機隔音罩的拆除步驟,因為我們的隔音罩是片裝的,在運輸和使用過程中更方便。正常的羅茨鼓風機維護不需要拆除隔音罩,打開前后門。考慮到設備檢修移動終端的方便性,按以下方法和步驟操作:
1.切斷各種電源,拆除風機、電機、排氣扇和各種儀表的接線,如果可以的話,在線頭上做適度的標記。
2.先拆下蓋板、前后門扇、上下側板的連接螺釘,確保!操作時不要站在頂板上。
3.在頂蓋板周圍做好標記后,輕輕將頂蓋板側移至合適的地方,避免撞擊變形。
4.在所有連接角鋼上做好標記后,拆除前后門扇與上下側板之間的所有角鋼,并將所有板側放在合適的地方。拆除時注意,并有專人幫助板材,避免坍塌、損壞和變形。
6、羅茨鼓風機隔音罩安裝拆卸過程中的注意事項1。在安裝和拆卸隔音罩的過程中,要注意,不要撞擊所有隔音板,以免劃傷、變形和損壞隔音板。
2.在安裝和拆除隔音罩的過程中,操作人員不能站在隔音罩上,隔音罩變形和坍塌,造成事故!
3.安裝鉆孔時注意,鉆頭不得撞擊風機隔音罩表面。
4.所有板與板之間的連接應平整牢固,無松動和間隙。
5.安裝拆除過程中如有不明之處,應及時聯系我企業,避免不必要的損失和損壞!
7.章瑞機械羅茨風機隔音罩的點檢和維護一般比較簡單。一般安裝運行3個月后可以檢查一次,然后半年可以檢查一次!主要做好以下幾點:
1.保持道路整潔,運輸物品時不要碰到隔音罩表面,保持隔音罩表面整潔。
2.檢查隔音罩連接處的連接螺釘是否松動,并重新擰緊所有緊固螺釘。
3.仔細檢查風扇隔音罩是否有間隙和噪音泄漏區域,及時注入玻璃密封膠,確保隔音罩的隔音效果。
4.檢查隔音罩內部是否有損壞和變形,并及時。維修時要注意電焊等明火,注意火花千萬不要濺到消音板上,以免造成不必要的損壞和事故。一般來說,如果你想修理隔音罩,你可以先聯系我們公司,然后由我們公司的人員指導。
5.隔音罩內排風機、電機及各種儀表的接線是否完好,定期更換,火災等事故發生。
相關新聞
- 2023-03-30羅茨鼓風機隔音罩(隔音房)安裝步驟及注意事項
- 2022-12-09羅茨風機隔音房(隔音罩)安裝方法
- 2026-04-15羅茨風機廠家分享羅茨鼓風機選型說明書
- 2026-04-147臺200型粉體物料氣力輸送羅茨風機專車發貨現場
- 2026-04-032026年清明節放假通知







